情報更新日:2026-05-18
| 所在地 | 間取 | 価格 | 建物延面積 | 敷地面積 |
|---|---|---|---|---|
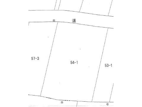
| 青森県 弘前市 河原町 | 6DK | 2,160万円 | 148.13㎡ | 1059.21㎡ (公簿) |
敷地1059.21㎡(320.41坪)住宅と倉庫有
本物件の内容や画像等は全て現況優先とさせていただきます。各画像は参考図となります。
![]() |
![]() |
| 交通機関 | JR奥羽本線 弘前駅車で15分 | ||
|---|---|---|---|
| 学区 | |||
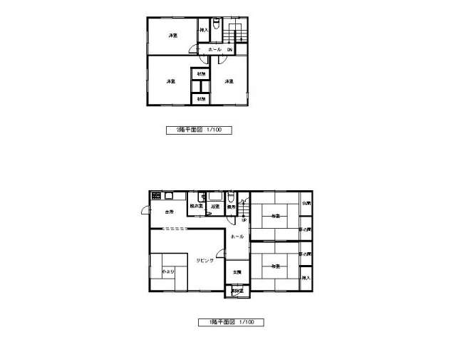
| 詳細間取 | 6DK (1階:和8帖×2、2階:洋6帖×2、2階:洋6.5帖×1、1階:15帖×1、1階:DK4.5帖) | ||
| 周辺施設 | |||
| その他費用 | |||
| 総戸数 | 1戸 | 建物構造 | 軽量鉄骨造 |
| 築年月 | 昭和60年9月 | 主要採光方向 | 不明 |
| 駐車場 | 敷地内 可 | 地勢 | 平坦 |
| 駐車場複数台 | 可 | 土地権利 | 所有権 |
| 用途地域 | 第一種低層住居専用 | 国土法届 | 不要 |
| 取引態様 | 専任媒介 | 現況 | 居住中 |
| 引渡 | 他 (要相談) | 建ぺい率/容積率 | 60% / 150% |
| 地目 | 宅地 | 都市計画 | 市街化 |
| セットバック | 無 | 接道状況 | |
| 私道負担 | ─ / ─ | 建築確認番号 | |
| 法令上の制限 | |||
| 設備 | バス(有 シャワー有 給湯式) トイレ(洋式 独立 水洗 暖房便座) 上水道設備(公営) 下水道設備 給湯(石油) 洗面化粧台(独立) LPガス インターホン 下駄箱 洗濯機置場 二重サッシ 照明器具 電話配線設備 TVアンテナ | ||
| 備考 | 未登記倉庫(約190㎡)古い住宅あり 所有者家族居住中の為、内覧の場合事前予約必要です。 ※同業他社による客付け可 | ||
| 取扱業者 |
㈲ サンコー 青森県知事免許(6)第2809号 青森県弘前市駅前町6-15 SKビル1F TEL:0172-33-2452 FAX:0172-33-4780 (公社)全日本不動産協会会員 東北地区不動産公正取引協議会加盟事業者 |
||
右下の アイコンをドラッグ&ドロップすると、ストリートビューが見れます!
|